Verkehrsuntersuchungen
Variantenanalyse und Leistungsfähigkeitsnachweis

Verkehrstechnische Untersuchung am Knotenpunkt Aspacher / Röntgen- / Lichtensteinstraße in Backnang
Verkehrsuntersuchung mit Prognose der Verkehrsentwicklung, Leistungsfähigkeitsberechnung, Querneigungsuntersuchung und Beurteilung der Entwurfsskizzen in Bezug auf die besonderen Bedürfnisse der Fußgänger und Radfahrer, sowie des ÖPNV.
Untersuchungszeit: Juni–Oktober 2016
mehr Informationen
Verkehrstechnische Untersuchung des Knotenpunkts Friedrich-Ebert-Straße (L 171) / Zubringer B 27 in Donaueschingen
Verkehrsuntersuchung mit Verkehrserhebungen, Leistungsfähigkeitsuntersuchung und Enwurfsskizzen zur Verbesserung des Verkehrsablaufs
Untersuchungszeit: Juni – September 2016
mehr Informationen
Verkehrstechnische Untersuchung zum Knotenpunkt Ditzinger / Hofwiesenstraße in Gerlingen
Verkehrsuntersuchung mit Verkehrserhebungen, Leistungsfähigkeitsuntersuchung, Enwurfsskizzen zur Verbesserung des Verkehrsablaufs und Grobkostenschätzungen
Untersuchungszeit: Juni 2015 – September 2016
mehr InformationenVerkehrsstudien

Verkehrsuntersuchung zu einem Lkw-Durchfahrtverbot B 297 in Nürtingen-Reudern / Nürtingen-Neckarhausen
Verkehrszählung und Lkw-Befragung zur Untersuchung eines Lkw-Durchfahrtverbots auf der B 297 in Nürtingen-Reudern/Nürtingen-Neckarhausen
Untersuchungszeit: August 2015 – September 2016
mehr Informationen
Analyse von Zeitbedarfswerten an 3 signalisierten Knotenpunkten in Offenburg
Erhebung und Auswertung von Zeitbedarfswerten an signalisierten Knotenpunkten zur Berechnung optimaler Umlaufzeiten in Offenburg
Untersuchungszeit: September 2014 – März 2016
mehr InformationenBebauungspläne / Bauanträge

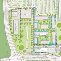
Verkehrsuntersuchung zum geplanten Technologie- und Zukunftspark Hess in Waiblingen
Untersuchungszeit: November 2017 – Februar 2019
mehr Informationen
Verkehrstechnische Untersuchung zum B-Plan Industrie- und Gewerbepark Eichwald - Teilbereich Süderweiterung
Verkehrstechnische Untersuchung zum Bebauungsplan Industrie- und Gewerbepark Eichwald – Teilbereich Süderweiterung in Sachsenheim
Untersuchungszeit: Januar – April 2016
mehr Informationen
Verkehrsuntersuchung zum Bebauungsplan "Kronenwiese" in Offenburg
Leistungsfähigkeitsuntersuchung mit Verkehrssimulationen und Vorschlägen zur Verbesserung des Verkehrsablaufs
Untersuchungszeit: Juni – Oktober 2014
mehr InformationenLärmgutachten

Schalltechnische Untersuchung zum B-Plan Industrie- und Gewerbepark Eichwald - Teilbereich Süderweiterung
Schalltechnische Untersuchung zum Bebauungsplan Industrie- und Gewerbepark Eichwald – Teilbereich Süderweiterung in Sachsenheim
Untersuchungszeit: Januar – April 2016
mehr Informationen
Verkehrsplanerische und schalltechnische Untersuchung zur Erweiterung eines Weinguts in Immenstaad
Verkehrsplanerische und schalltechnische Untersuchung zum Bebauungsplan "Hardt-Horn – 5. Änderung: Weingut Röhrenbach" in Immenstaad
Untersuchungszeit: August – November 2015
mehr Informationen