Entwässerungskanäle
Ortsentwässerung
Kanalerneuerung Kernerstraße / Schützenplatz in Stuttgart-Mitte
Gesamtsumme: ca. 1,1 Mio. Euro brutto
März 2021 - Oktober 2021
mehr Informationen
Kanalerneuerung Reutlinger Straße in Stuttgart-Degerloch
Erneuerung der vorhandenen Mischwasserkanäle in der Reutlinger Straße, Große Falterstraße und der Ramsbachstraße in Stuttgart-Degerloch.
Gesamtsumme: ca. 1,7 Mio. Euro
Bauzeit: Juli 2012 – April 2013
mehr Informationen
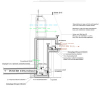
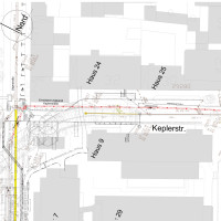
Entwässerungskanal Keplerstraße in Stuttgart-Mitte
Entwässerungskanal DN 600 / DN 800 im Vortriebsverfahren für die Neuordnung des Klinikums Mitte
Gesamtsumme: ca. 640.000 Euro
Bauzeit: Januar – April 2010
mehr Informationen
Glemsdurchlass in Stuttgart-Büsnau (Mahdental)
Durchlass in offener Bauweise als Unterführungsbauwerk der Glems unter einem geplanten Kreisverkehrsplatz in Stuttgart-Büsnau (Mahdental).
Gesamtsumme: 500.000 Euro
Bauzeit: 2008
mehr InformationenHauptsammler
Kanalerneuerung Benzstraße – NeckarPark in Stuttgart
Verlegung des Hauptsammlers in der Benzstraße in Stuttgart-Bad Cannstatt für die Neuanordnung des Gebiets NeckarPark.
Gesamtsumme: 6,605 Mio. Euro
Bauzeit: 2017 – fortlaufend
mehr Informationen
Mischwassersammler Herdweg
Ingenieurbauwerk Entwässerungskanal
Mischwassersammler DN 1400 / DN 1800
Rohrvortrieb mit 10 Schachtbauwerken
in Stuttgart-Nord
Gesamtsumme: 2,6 Mio. Euro
Bauzeit: 2006 – 2007
mehr Informationen












